Общи положения: Електрическият верижен подемник, проектиран за хранително-вкусовата промишленост. Смазочните материали за хранително-вкусовата промишленост, използвани в товарната верига и в редуктора, са съвместими с NFS H1 за безопасна употреба във всеки обект, където има случаен контакт с продукти.
Повдига от 500 kg до 2 тона.
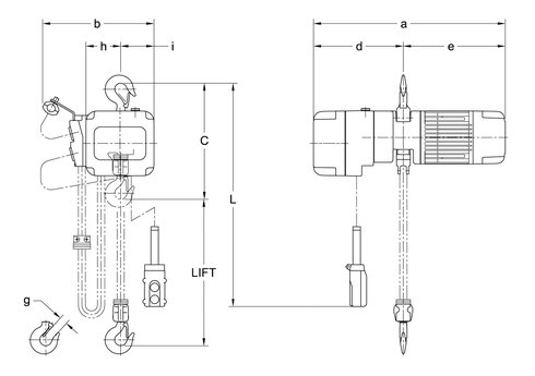
Стандартни конфигурации:
- 400 V/50 Hz/3P
- Стандартна височина на повдигане 3 m
- Електромагнитна спирачка: подобрена производителност и безопасност
- Здравият корпус от алуминиева отливка предпазва честотния инвертор от външни въздействия
- Бяла епоксидна кука на дъното
- Ключалка за кука от неръждаема стомана
- Напълно затворен, охлаждан от вентилатор електрически двигател
- Честотен инвертор с ниска поддръжка и лесно управление за 2 скорости на повдигане за точно позициониране на товара
- Контакторно управление за една скорост
- Въглероден фрикционен съединител: предпазва верижния подемник в случай на претоварване от повреди и предлага на потребителя по-висока степен на безопасност
- Стандартно предлаган контейнер за вериги от платно
- Модернизиран процес на отгряване на никелираната товарна верига (клас DAT в съответствие със стандарт EN 818-7) с висока якост (800 N/mm2) осигурява максимална устойчивост и дълготрайност
Опции:
- Устойчив на корозия комплект кука - товарна кука от неръждаема стомана, гумена възглавница от неръждаема стомана (0,5 т и 1 т), никелирана ограничителна тапа (0,5 т и 1 т), пружина от неръждаема стомана и ограничителна плоча (2 т)
- Устойчив на корозия комплект за количка - колела за количка от неръждаема стомана, направляващи ролки от неръждаема стомана, никелиран подвес, никелиран вал за окачване
- Контейнер за верига от неръждаема стомана, пластмаса или платно
- Капак на висулката
Повдига от 500 kg до 2 тона.
Стандартни конфигурации:
- 400 V/50 Hz/3P
- Стандартна височина на повдигане 3 m
- Електромагнитна спирачка: подобрена производителност и безопасност
- Здравият корпус от алуминиева отливка предпазва честотния инвертор от външни въздействия
- Бяла епоксидна кука на дъното
- Ключалка за кука от неръждаема стомана
- Напълно затворен, охлаждан от вентилатор електрически двигател
- Честотен инвертор с ниска поддръжка и лесно управление за 2 скорости на повдигане за точно позициониране на товара
- Контакторно управление за една скорост
- Въглероден фрикционен съединител: предпазва верижния подемник в случай на претоварване от повреди и предлага на потребителя по-висока степен на безопасност
- Стандартно предлаган контейнер за вериги от платно
- Модернизиран процес на отгряване на никелираната товарна верига (клас DAT в съответствие със стандарт EN 818-7) с висока якост (800 N/mm2) осигурява максимална устойчивост и дълготрайност
Опции:
- Устойчив на корозия комплект кука - товарна кука от неръждаема стомана, гумена възглавница от неръждаема стомана (0,5 т и 1 т), никелирана ограничителна тапа (0,5 т и 1 т), пружина от неръждаема стомана и ограничителна плоча (2 т)
- Устойчив на корозия комплект за количка - колела за количка от неръждаема стомана, направляващи ролки от неръждаема стомана, никелиран подвес, никелиран вал за окачване
- Контейнер за верига от неръждаема стомана, пластмаса или платно
- Капак на висулката
- Работна температура: -20ºC до +40ºC